인천 중구 도시정비사업관련하여 재개발 구역을 알아보겠습니다. (23년7월작성)
영종도를 제외한 인천 원도심지역쪽으로 재개발 예정인 구역은 아래 지도와 같습니다.

1.인천여상 주변

1)사업현황
사업면적 : 20,481㎡
건 폐 율 : 25% 이하
용 적 률 : 405% 이하
높 이 : 137.6m 이하
2)추진현황
2006.08.01 도시 주거환경정비 기본계획 수립 (인천광역시 고시 제2006-130호)
2006.09.01 조합설립추진위원회 구성 및 승인
2008.10.27 정비계획 수립 및 정비구역 지정 (인천광역시 고시 제2008-234호)
2009.04.13 조합설립인가
2020.05.25 사업시행계획인가 (인천광역시 중구 고시 제2020-86호)
2021.08.31 관리처분계획인가 (인천광역시 중구 고시 제2021-158호)
2.경동율목구역

1)사업현황
사업면적 : 34,218㎡
건 폐 율 (주거/상업) : 20% / 49% 이하
용 적 률 (주거/상업) : 300%/304% 이하
높 이 (주거/상업) : 100m/60m 이하
2)추진현황
2006.08.01 도시 주거환경정비 기본계획 수립 (인천광역시 고시 제2006-130호)
2006.12.27 조합설립추진위원회 구성 및 승인
2009.03.23 정비계획 수립 및 정비구역 지정 (인천광역시 고시 제2009-88호)
2009.06.23 조합설립인가
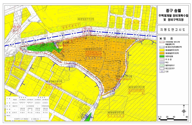
3.송월구역

1)사업현황
사업면적 : 27,338㎡
건 폐 율 : 15% 이하
용 적 률 : 250% 이하
높 이 : 83m 이하
2)추진현황
2006.08.01 도시 주거환경정비 기본계획 수립 (인천광역시 고시 제2006-130호)
2007.02.22 조합설립추진위원회 구성 및 승인
2009.04.13 정비계획 수립 및 정비구역 지정 (인천광역시 고시 제2009-119호)
2009.08.20 조합설립인가
4.경동구역

1)사업현황
사업면적 : 41,970㎡
건 폐 율 : 24% 이하
용 적 률 : 370% 이하
높 이 : 110m 이하
2)추진현황
2006.08.01 도시 주거환경정비 기본계획 수립 (인천광역시 고시 제2006-130호)
2006.08.23 조합설립추진위원회 구성 및 승인
2009.11.16 정비계획 수립 및 정비구역 지정 (인천광역시 고시 제2009-353호)
2010.05.24 조합설립인가
5.송월아파트 구역

1)사업현황
사업면적 : 33,683㎡
건 폐 율 : 20% 이하
용 적 률 : 285% 이하
높 이 : 120m 이하
2)추진현황
2006.08.01 도시 주거환경정비 기본계획 수립 (인천광역시 고시 제2006-130호)
2008.08.11 조합설립추진위원회 구성 및 승인
2011.08.16 정비계획 수립 및 정비구역 지정 (인천광역시 고시 제2009-205호)
2020.03.09 조합설립인가
이상 인천 중구 도시정비사업관련하여 재개발 구역을 알아보았습니다.
'디벨롭-인천 > 개발정보' 카테고리의 다른 글
| 송도국제도시 8공구 R2, B1, B2 제안공모에 대한 주민의견청취 행사 정리 (1) | 2023.08.18 |
|---|---|
| 인천 송도 R2 상업부지에 대한 기사내용 정리. 23.08.11 (4) | 2023.08.16 |
| 인천 서구 도시개발사업 현황 (0) | 2023.07.27 |
| 인천 계양구 재개발 재건축 정비사업 현황 (0) | 2023.07.27 |
| 검단 신도시 개발사업 및 특별계획구역 (Ft.순살자이) (0) | 2023.07.19 |